.header__wrapper { opacity: 1; } [Skip to content]

Monday - Friday: 08:00 - 17:30 | Saturday - Sunday: Closed

Fitting Set, for Sliding Glass Interior Doors, Hawa-Junior 80/GS

Part Number: 940.80.008
Top hung system, For 1 door
Price:
£634.77
Per Item
VAT excluded

Fitting Set, for Sliding Glass Interior Doors, Hawa-Junior 80/GS (Product Part No: 940.80.008) is a heavy duty,... Read More

Product Information

Product Details

Fitting Set, for Sliding Glass Interior Doors, Hawa-Junior 80/GS (Product Part No: 940.80.008) is a heavy duty, top hung sliding and folding door fitting set designed for smooth, precise performance in interior glass door applications. If you’re planning a premium sliding or folding solution for a single door, this system offers dependable tracking, strong suspension support, and a clean, modern glide—ideal for offices, residential interiors, and architectural spaces where quality matters.

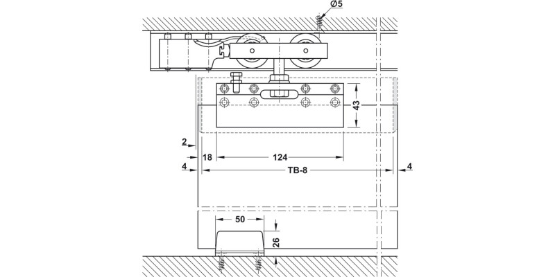
Working as a Top hung system for 1 door, the Hawa Junior 80GS supports glass door construction with ≤80 kg door weight and a door width of ≤3,000 mm. It accommodates tempered safety glass thicknesses of 8 mm, 10 mm, 12 mm, and 12.7 mm, helping you create a secure and refined installation.

This set features a 80 GS configuration without soft and self closing mechanism, paired with a track buffer on both sides for added stability during operation. The suspension is supplied as clamping shoe mounting, making installation straightforward—while supporting doors up to ≤4,000 mm in height.

Key installation advantages: top running position, ceiling installation, and height adjustment ± 3 mm for accurate alignment. The system is certified in compliance with EN 1527:2013, supporting reliable long-term use.

Note: Tracks, fittings, and fixings must be ordered separately. Choose Fitting Set, for Sliding Glass Interior Doors, Hawa-Junior 80/GS. for a robust, architect-ready sliding/folding hardware solution with confident, effortless movement.

Specifications

Number of door wings in a system max.

1 to 2

Number of door leaves per set

1.00

For door material

Glass

Model

80 GS without soft and self closing mechanism with track buffer on both sides

Soft closing mechanism

Without soft and self closing mechanism

For door weight

≤80 kg

For door width

≤3,000 mm

Mounting type

Ceiling installation

For glass thickness with tempered safety glass

8 mm, 10 mm, 12 mm, 12.7 mm

Adjustment facility

Height adjustment ± 3 mm

Area of application

Interior glass doors

For door height

≤4,000 mm

For glass type

Tempered safety glass

Running position

Top

Installation

Suspension with clamping shoe

Door processing

Without glass preparation

Standard

Certified in compliance with EN 1527:2013

Classification in compliance with EN 1527

-|6|1|-|1|0|-|1|3

Order reference

Tracks, fittings and fixings to be ordered separately