Tiomos 120D Hinge Click wo SC SF Ins
√ò 35 mm cup
- Opening angle: 120 °
- Hinge arm: Click on
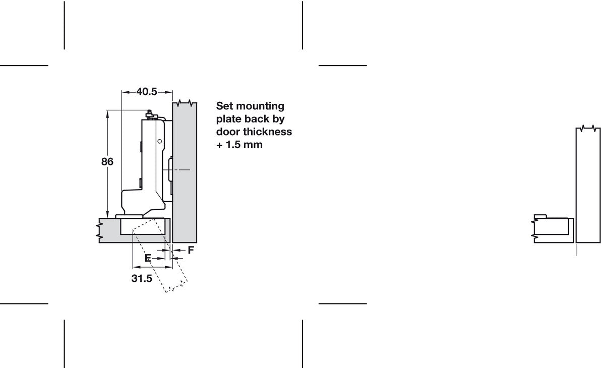
- Drilling pattern: 45/9.5 mm
- Drilling depth: Hinge cup 12.6 mm
- Application: For standard applications
- Model series: Tiomos 120°
- Material: Cup: SteelHinge arm: Zinc alloy
- Order reference: Order Hospa √ò 3.5 mm countersunk screws separately