.header__wrapper { opacity: 1; } [Skip to content]

Monday - Friday: 08:00 - 17:30 | Saturday - Sunday: Closed

Hawa-Miniroll 25 FitSet 3Door

Part Number: 404.35.032
Bottom Rolling System, For 3 doors
Price:
£448.11
Per Item
VAT excluded

Bottom rolling system for top quality domestic and commercial furniture where doors slide on single or double... Read More

Product Information

Product Details

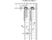
Bottom rolling system for top quality domestic and commercial furniture where doors slide on single or double parallel tracks
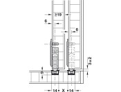
Both top and bottom rollers have vertical adjustment facility
Door width normally one third of height minimum to maintain door operation stability
Recommended door construction: Width normally one third of height minimum to maintain door operation stability

Supplied with

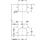
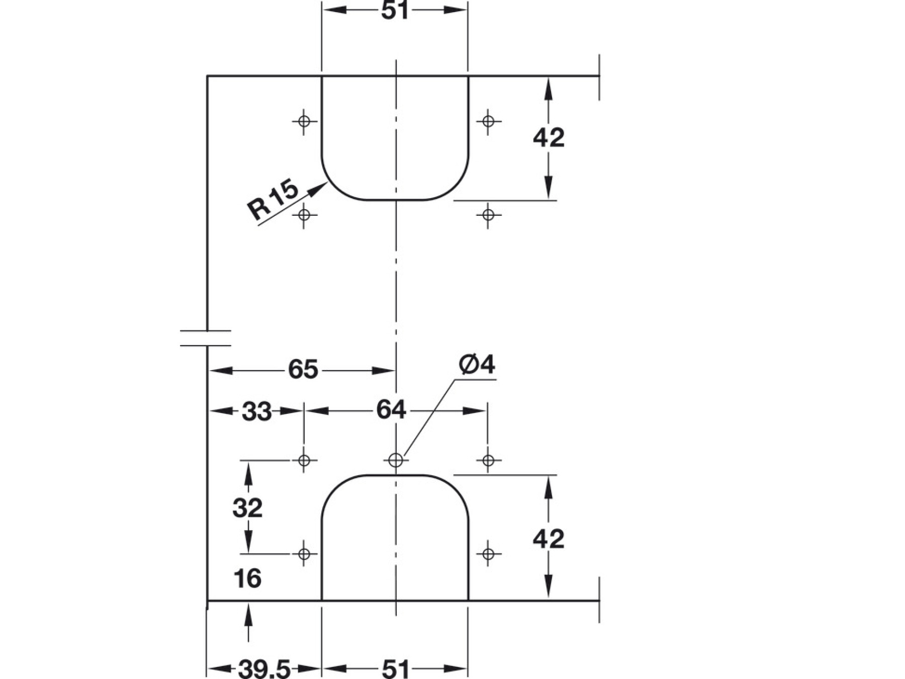
Fitting set includes 6 x Fixing plate with guide, ± 6 mm height adjustable, nickel plated steel and plastic, 2 x Track stopper with clamp set (set = 4pcs), adjustable in track/channel, steel with rubber buffer, 1 x Allen key to secure stopper in track/channel, 6 x Bottom roller with eccentric screw for adjusting door panel height, nickel plated steel, 1 x Rubber buffer in a hole drilled in end of door panel, white rubber

Specifications

Soft closing mechanism

With clip-in door stopper

For door thickness

≥19 mm

For door weight

≤25 kg

Running position

Bottom

Number of rollers

1.00

Running gear guided by

Ball bearing

For door material

Wood

Height adjustable

Area of application

For 3 doors

Door stopper

Top and bottom clip-in door stopper, for sliding into single running and guide tracks

Material/finish

Running gear: SteelGuide: SteelRollers: Plastic

Adjustment facility

Height adjustment ± 2 mm

Door adjustment via

slot

Installation

Running gear and guide for screw fixing

Set

Set without tracks

Type of opening

linear

Number of door wings in a system max.

1 to 3

Order reference

Tracks and accessories to be ordered separately